Boa tarde,
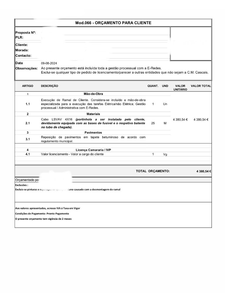
O meu engenheiro pediu um orçamento da ligação do ramal subterrâneo de um cabo LSVAV de 25 M para uma moradia unifamiliar no concelho de cascais , a distância entre o poste e a portinhola são 10 metros.
Gostaria de saber a vossa opinião se este orçamento está exagerado visto eu já ter visto orçamentos inferiores em outros tópicos.
Obrigado
Orcamento Novo Ramal
-
- Faça a sua apresentação
- Mensagens: 9
- Registado: 23 out 2023, 13:55
- Profissão: estafeta
- Localização: cascais
-
- Quadro de Honra
- Mensagens: 1256
- Registado: 22 out 2007, 22:10
- Localização: Lisboa
- Enviou: 4 vezes
- Agradecimento recebido: 97 vezes
Re: Orcamento Novo Ramal
Boas
A E-redes disponibiliza um simulador para ligações de ramais, creio que até dá para tratar de tudo através do site mas confesso que nunca utilizei.
Link
https://www.e-redes.pt/pt-pt/quanto-cus ... gacao-rede
A E-redes disponibiliza um simulador para ligações de ramais, creio que até dá para tratar de tudo através do site mas confesso que nunca utilizei.
Link
https://www.e-redes.pt/pt-pt/quanto-cus ... gacao-rede
Projectista de Instalações Elétricas, Telecomunicações e Segurança Eletrónica