planta t2

Responder
danniel4
Faça a sua apresentação
Faça a sua apresentação
Mensagens: 6
Registado: 27 mar 2011, 20:42

planta t2

Mensagem por danniel4 »

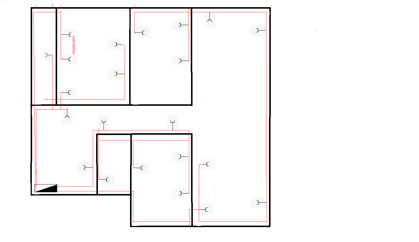
Boas , fiz esta planta no papel e passei-a rapidamente para o paint , podem-me dizer se estas ligações das tomadas estão bem feitas ?

Não liguen á planta em si , foi feita á pressa o que interessa é se as ligações estão bem .

Cumprimentos !
Anexos
planta t2.png
Mario Lopes
Velha Guarda
Velha Guarda
Mensagens: 250
Registado: 12 jan 2011, 14:37
Localização: Telheiras - Lisboa
Agradecimento recebido: 14 vezes

Re: planta t2

Mensagem por Mario Lopes »

Viva,

Marca em planta a wc e cozinha. Os circuitos para as Wc´s são directos ao Quadro, e na cozinha temos um circuito directo para fogão(4mm2), forno, MLL e MLR, e o da bancada que fará até 8 tomadas por norma.

Abraços

Mário Lopes
danniel4
Faça a sua apresentação
Faça a sua apresentação
Mensagens: 6
Registado: 27 mar 2011, 20:42

Re: planta t2

Mensagem por danniel4 »

Como assim ? nao percebi isso da cozinha .
Mario Lopes
Velha Guarda
Velha Guarda
Mensagens: 250
Registado: 12 jan 2011, 14:37
Localização: Telheiras - Lisboa
Agradecimento recebido: 14 vezes

Re: planta t2

Mensagem por Mario Lopes »

Olá,

A cozinha deverá ter circuitos directos ao Q.E., tais como as máquinas o fogão e o forno. Se reparar não está desenhado na planta a localização da cozinha nem as suas alimentações. Em relação aos quartos considere cada circuito com 8 tomadas e implemente as tomadas que ache necessário.

Abraço

Mário Lopes
Avatar do Utilizador
Duarte82
Velha Guarda
Velha Guarda
Mensagens: 175
Registado: 23 jul 2009, 14:24
Localização: V. N. de Famalicão
Agradecimento recebido: 1 vez

Re: planta t2

Mensagem por Duarte82 »

As derivações num circuito de tomadas serão feitas nas próprias tomadas, usando uma caixa de aparelhagem funda, e não em qualquer parte do circuito. Em obra ninguém te põe uma caixa de derivação num circuito de tomadas, salvo casos excepcionais...
José Duarte Pereira
(Engenheiro Eletrotécnico)
Projectista Electricidade, ITED/ITUR, Gás
danniel4
Faça a sua apresentação
Faça a sua apresentação
Mensagens: 6
Registado: 27 mar 2011, 20:42

Re: planta t2

Mensagem por danniel4 »

MAs isto é para fazer na escola , numa prancheta de madeira . Tipo uma simulação , está a entender ?
Avatar do Utilizador
Mário
Team Apoio
Team Apoio
Mensagens: 8150
Registado: 09 nov 2007, 22:11
Localização: Lisboa
Enviou: 3 vezes
Agradecimento recebido: 221 vezes

Re: planta t2

Mensagem por Mário »

Boas
danniel4 Escreveu:MAs isto é para fazer na escola , numa prancheta de madeira . Tipo uma simulação , está a entender ?
Aqui o pessoal é lento a entender, principalmente quando andamos a adivinhar o que um membro quer, principalmente quando o perfil "profile" nada diz, e só escreve metade da pergunta.

Cump.
Mário
" Nenhum trabalho é tão importante quanto colocar em risco a minha segurança ou daqueles ao meu redor."
Avatar do Utilizador
jorgesport
Curioso
Curioso
Mensagens: 20
Registado: 10 ago 2009, 18:30
Localização: Portugal

Re: planta t2

Mensagem por jorgesport »

Concordo plenamente com o duarte82!!!!

:) :)
Avatar do Utilizador
omfontes
Faça a sua apresentação
Faça a sua apresentação
Mensagens: 9
Registado: 20 mai 2011, 18:45
Localização: Lisboa

Re: planta t2

Mensagem por omfontes »

Se isso é para a escola, deves estar a aprender certo?
Pois bem, só não erra quem não faz.
O que o nosso amigo quiz dizer foi: Na planta do T2 que desenhaste, escreve em cada divisão a descrição da mesma, ou seja, quarto sala, cozinha, wc etc.
É que para mais tarde, á parte de uma outra série de normas e regras, deves ter pelo menos em conta que por exemplo, para a cozinha, tens de ter circuitos directos a vir do Q.E. para o forno eléctrico (3*4mm2 de secção), um circuito para a máquina de lavar roupa (3*2,5mm2), outro para a maquina de lavar loiça(3*2,5mm2) e um outo circuito directo para as tomadas de serviços gerais (aquelas que normalmente ficam espalhadas pela cozinha para ligar um ou outro equipamento.
Tudo isto para te explicar que só para começar na cozinha tens de ter 4 circuitos independentes a virem directos do Q.E.
Logo percebes que se não identificares as áreas dificil será dizer se está certo ou errado.

Espero ter ajudado

omfontes
sergio.tavares
Faça a sua apresentação
Faça a sua apresentação
Mensagens: 8
Registado: 08 abr 2011, 19:16
Localização: Oliveira de Frades

Re: planta t2

Mensagem por sergio.tavares »

Atenção as tomadas de uso geral na cozinha. Apenas podem ser 4 tomadas por circuito. Só e apenas na cozinha.
Mario Lopes
Velha Guarda
Velha Guarda
Mensagens: 250
Registado: 12 jan 2011, 14:37
Localização: Telheiras - Lisboa
Agradecimento recebido: 14 vezes

Re: planta t2

Mensagem por Mario Lopes »

Viva,

Colega onde é que viu isso escrito no regulamento. Que eu saiba basta que a corrente In do circuito para o circuito em causa fique abaixo da sua protecção, (16A).

Cumprimentos

Mário Lopes
ohmico
Técnico Dedicado
Técnico Dedicado
Mensagens: 1922
Registado: 22 fev 2008, 14:44
Enviou: 18 vezes
Agradecimento recebido: 82 vezes

Re: planta t2

Mensagem por ohmico »

sergio.tavares Escreveu:Atenção as tomadas de uso geral na cozinha. Apenas podem ser 4 tomadas por circuito. Só e apenas na cozinha.

Boas,

será possível explicar em que se baseia para esta afirmação?

Obrigado

ohmico
Mario Lopes
Velha Guarda
Velha Guarda
Mensagens: 250
Registado: 12 jan 2011, 14:37
Localização: Telheiras - Lisboa
Agradecimento recebido: 14 vezes

Re: planta t2

Mensagem por Mario Lopes »

Viva, Colega Ohmico.

Está a referir-se a mim ou ao colega Sérgio.

Cump.

Mário Lopes
Responder

Voltar para “Esquemas Elétricos”