Esquema comando On / Off com uma botoneira

ohmico
Técnico Dedicado
Técnico Dedicado
Mensagens: 1922
Registado: 22 fev 2008, 14:44
Enviou: 18 vezes
Agradecimento recebido: 82 vezes

Re: Esquema comando On / Off com uma botoneira

Mensagem por ohmico »

Boas,

assunto encerrado, tem toda a razão.

ohmico
rainbow
Velha Guarda
Velha Guarda
Mensagens: 1426
Registado: 10 ago 2009, 10:15
Enviou: 16 vezes
Agradecimento recebido: 40 vezes

Re: Esquema comando On / Off com uma botoneira

Mensagem por rainbow »

Boa tarde.

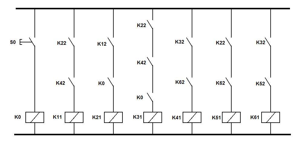
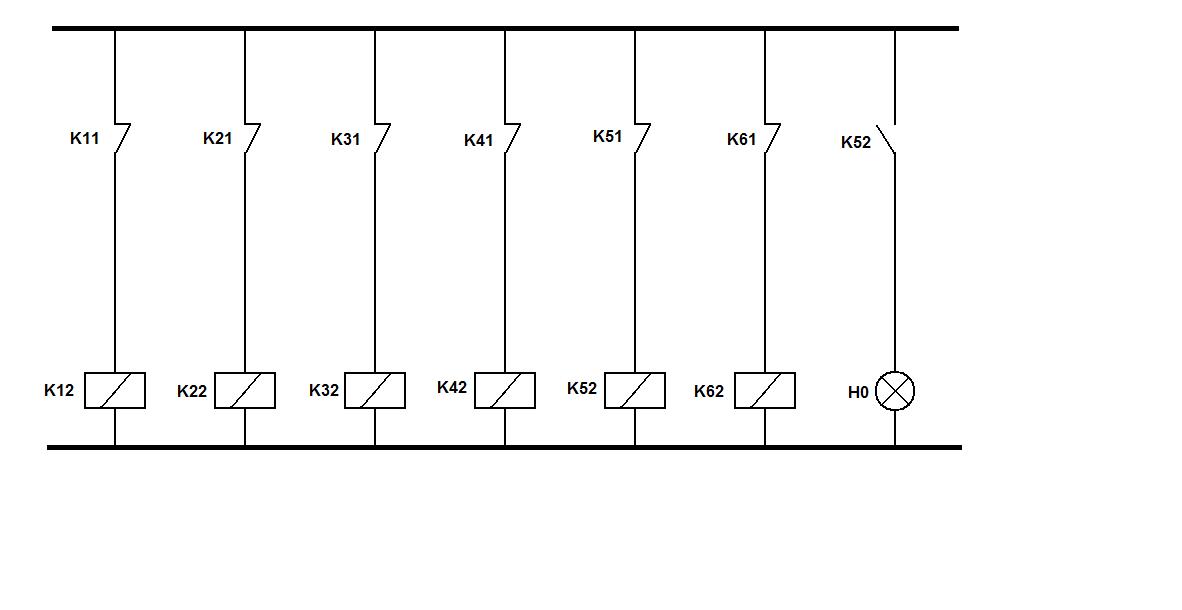
Deixo aqui mais um esquema com o mesmo propósito, mas com um principio diferente.
O objectivo, tal como no esquema anterior é ligar / desligar o circuito com apenas uma botoneira.
Este novo esquema é baseado num flip-flop T, activado pela mudança de estado (low ---> high) da entrada, que neste caso, será a botoneira.
Aparecem dois esquemas mas o segundo é a continuação do primeiro.
1.jpg
(35.42 KiB) Transferido 15 vezes
2.jpg
(35.27 KiB) Transferido 15 vezes
3.jpg
3.jpg (16.34 KiB) Visto 208 vezes
jaimereis
Quadro de Honra
Quadro de Honra
Mensagens: 2011
Registado: 30 abr 2011, 11:56
Localização: Almada/Charneca da Caparica
Enviou: 2 vezes
Agradecimento recebido: 13 vezes

Re: Esquema comando On / Off com uma botoneira

Mensagem por jaimereis »

boas

como esquema didatico , está correcto, na nossa leitura(mente humana) funciona, mas numa aplicação pratica, vai surgir o mesmo problema

os reles vão "saltar", experimente....
Jaime Reis
Responder

Voltar para “Esquemas Elétricos”