telerruptor
telerruptor
boas ha dias liguei um telerruptor da legrand com o seguinte esquema, e funciona, mas no entanto tenho um de um modelo diferente e nao o consigo por a "atracar" e um legrand 49107 10a 250v~, nao sei se tera de ir o neutro ao botao, sem esquema e dificil,, bgd cumps
- Anexos
-
- duvida.jpg
- este nao consigo
- (19.01 KiB) Transferido 51 vezes
-
- telerruptor.jpg
- penso ke e assim que o tenho ligado,
- (21.66 KiB) Transferido 51 vezes
- LinceS@T
- Velha Guarda

- Mensagens: 233
- Registado: 21 jan 2008, 22:54
- Localização: Évora - Engº de Energia e Sistemas de Potência e Automação
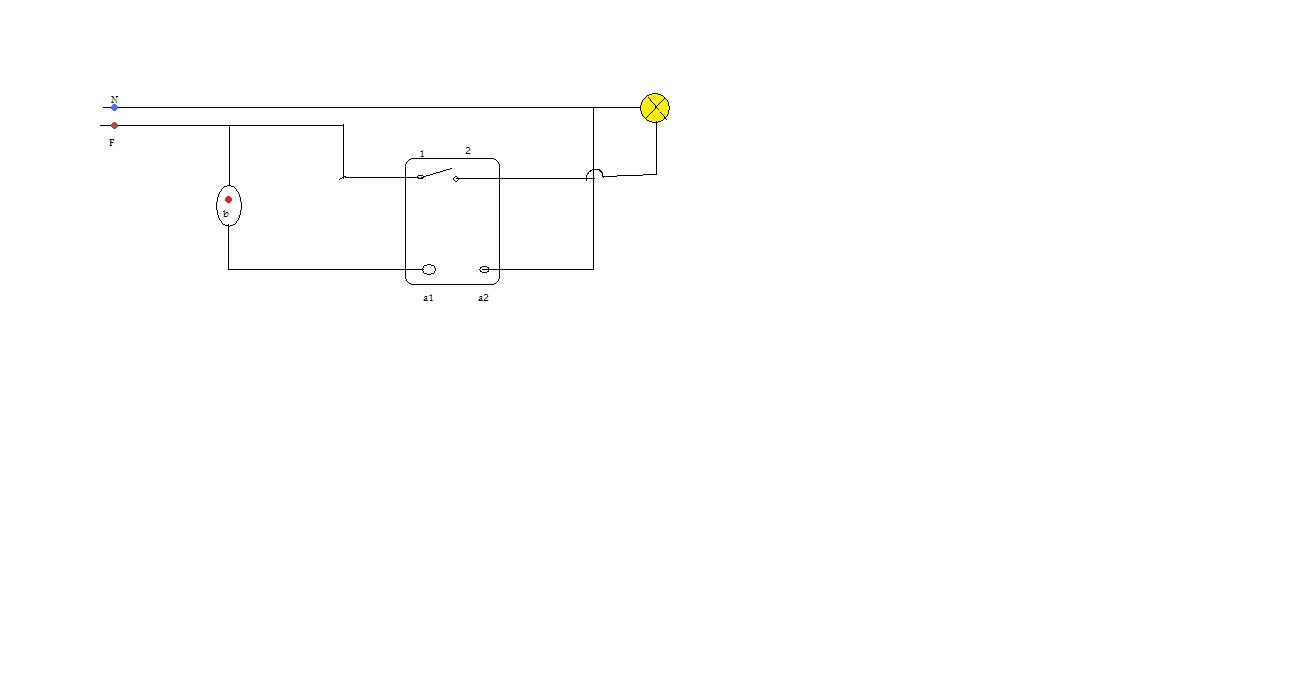
Re: telerruptor
Penso que está bem ligado.
O esquema é este.
Cumprimentos
O esquema é este.
Cumprimentos
- Anexos
-
- Telerruptor.jpg (10.77 KiB) Visto 846 vezes
Saber não ocupa espaço.
Re: telerruptor
não me paree que esteja bem ligado....
a fase é enviada para as lampadas a partir do relé do telerruptor e é accionado a partir do neutro que vai aos botôes de pressão e depois ao telerruptor....
mas bem......
verifica o esquema abaixo e não há muito por onde enganar...
a fase é enviada para as lampadas a partir do relé do telerruptor e é accionado a partir do neutro que vai aos botôes de pressão e depois ao telerruptor....
mas bem......
verifica o esquema abaixo e não há muito por onde enganar...
- Anexos
-
- 075 Telerruptor.rar
- (188.92 KiB) Transferido 97 vezes
- LinceS@T
- Velha Guarda

- Mensagens: 233
- Registado: 21 jan 2008, 22:54
- Localização: Évora - Engº de Energia e Sistemas de Potência e Automação
Re: telerruptor
Existe alguma diferença entre o esquema do amigo dtr e o que coloquei? eu não encontro. Excepto que o meu tem duas lampadas e dois botões de pressão.windstorm Escreveu:não me paree que esteja bem ligado....
a fase é enviada para as lampadas a partir do relé do telerruptor e é accionado a partir do neutro que vai aos botôes de pressão e depois ao telerruptor....
mas bem......
verifica o esquema abaixo e não há muito por onde enganar...
Atenção que o esquema é mesmo o do telerruptor da legrand 49107.
Cumprimentos
Saber não ocupa espaço.
Re: telerruptor
pois mas no que eu tnho a funcionar nao tenho neutro no botao, so no telerruptor e a lampada ligada no rele e a fase que retorna do botao
Ps. eu ao consigo ver os esquemas ainda nao tenho permissao...
cumps
Ps. eu ao consigo ver os esquemas ainda nao tenho permissao...
cumps

