Oi pessoal,
numa obra houve uma necessidade de colocar 2 tubos de 125 + 2 tubos de 125 na P400 (2 de entrada e 2 de saida).
Como na P400 havia pouco espaço e por cima, para além de ficar a CAM do ITED fazer uma curva com o cabo que ira ser passado tornava-se muito complicado, um dos tubos foi colocado na lateral (ver o anexo)
Quando o sub empreiteiro foi para fazer o orçamento para o PLR (Ramal) disse-nos que a E-Redes nunca aprovaria aquela instalação.
Eu já procurei no Manual de Instalações da E-Redes e nas RTIEBT e não existe nada a especificar que a instalação de tubagem tem que ser em baixo ou em cima. No máximo nos esquemas do Manual de Instalações da Rede a instalação na P100 ou 400 aparece por cima ou por baixo.
Aqui alguém ja teve um problema semelhante?
Existe mesmo algum artigo que diga que as furações e a passagem dos tubos tem que ser por cima ou por baixo?
Instalação tubagem 125 na lateral da P400
-
joao.fole
- Faça a sua apresentação

- Mensagens: 10
- Registado: 12 jun 2020, 14:16
- Localização: Ferreira do Zêzere
Instalação tubagem 125 na lateral da P400
Ferreira do Zezere
Voltas de Enduro e Caça Submarina pelo meio
Voltas de Enduro e Caça Submarina pelo meio
-
monkey
- Curioso

- Mensagens: 43
- Registado: 31 mai 2008, 23:45
- Agradecimento recebido: 2 vezes
- Contacto:
Re: Instalação tubagem 125 na lateral da P400
Bom dia,
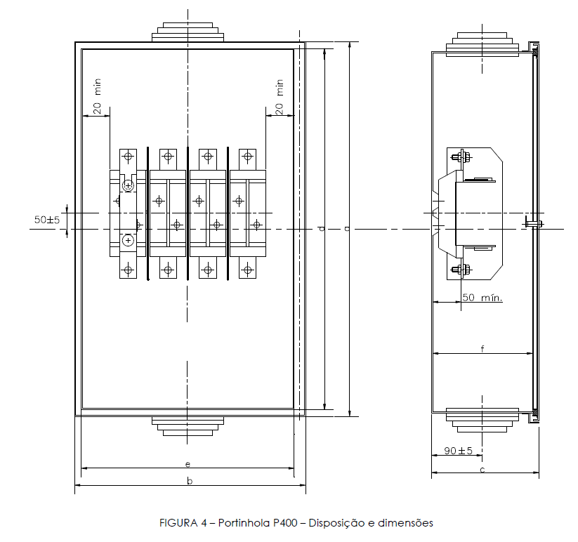
Talvez seja melhor questionar à E-Redes. Efetivamente na DMA-C62-807N a disposição de bucins é em cima e em baixo conforme figura anexa. Talvez seja por ai que o sub empreiteiro se pronunciou.
Já vi montadas com saída na lateral mas não posso garantir que estivessem em conformidade e estavam dentro de um condomínio privado.
Depois se conseguir novidades coloque aqui.
Talvez seja melhor questionar à E-Redes. Efetivamente na DMA-C62-807N a disposição de bucins é em cima e em baixo conforme figura anexa. Talvez seja por ai que o sub empreiteiro se pronunciou.
Já vi montadas com saída na lateral mas não posso garantir que estivessem em conformidade e estavam dentro de um condomínio privado.
Depois se conseguir novidades coloque aqui.
Re: Instalação tubagem 125 na lateral da P400
Penso que não haverá problema devido a isso desde que fundamentado. Vejam o ficheiro anexo, pag. 60 do manual E-Redes. Como ligariam a caixa A à caixa B ?
-
amoreira
- Quadro de Honra

- Mensagens: 1261
- Registado: 22 out 2007, 22:10
- Localização: Lisboa
- Enviou: 4 vezes
- Agradecimento recebido: 99 vezes
Re: Instalação tubagem 125 na lateral da P400
Eu diria que ao terem realizado furações na caixa foi "violada" a integridade dessa mesma caixa ou seja pode já não estar a cumprir por exemplo com o IP 45 só pelo facto de as saídas não serem a bucins.
Na DMA-C62-810/N diz o seguinte:
Bucim
Dispositivo concebido para permitir a entrada de um cabo para o interior do invólucro, assegurando a selagem do mesmo no seu ponto de entrada. Ele pode assegurar outras funções, tais como de retenção, isolamento, protecção (mecânica), ligação de continuidade da bainha metálica, ligação à terra, afrouxamento de tensão mecânica ou a combinação destas.
Na DMA-C62-810/N diz o seguinte:
Bucim
Dispositivo concebido para permitir a entrada de um cabo para o interior do invólucro, assegurando a selagem do mesmo no seu ponto de entrada. Ele pode assegurar outras funções, tais como de retenção, isolamento, protecção (mecânica), ligação de continuidade da bainha metálica, ligação à terra, afrouxamento de tensão mecânica ou a combinação destas.
Projectista de Instalações Elétricas, Telecomunicações e Segurança Eletrónica
-
Gil82
- Velha Guarda

- Mensagens: 539
- Registado: 14 abr 2010, 19:15
- Localização: Barreiro
- Enviou: 3 vezes
- Agradecimento recebido: 75 vezes
Re: Instalação tubagem 125 na lateral da P400
Boas!
A portinhola tem as tubagens por cima e por baixo. Na contagem pode ter lateralmente assim como na caixa de TI's.
Já tive um problema semelhante por falta de espaço no "murete técnico" e tive de substituir a portinhola.
Cumps!
A portinhola tem as tubagens por cima e por baixo. Na contagem pode ter lateralmente assim como na caixa de TI's.
Já tive um problema semelhante por falta de espaço no "murete técnico" e tive de substituir a portinhola.
Cumps!