Ligar e desligar motor em 2 locais diferentes

quero aprender
Velha Guarda
Velha Guarda
Mensagens: 1629
Registado: 07 abr 2008, 13:20
Localização: alverca
Enviou: 2 vezes
Agradecimento recebido: 6 vezes

Re: Ligar e desligar motor em 2 locais diferentes

Mensagem por quero aprender »

CF,Lda Escreveu:Vivam.
Colega Quero Aprender, o esquema apresentado pelo colega Nelmindo
é bem representativo daquilo que quer.
SF1, SF2, SF3 são botões de pressão normalmente abertos para ligarem
o motor à distancia e QA1, contacto auxiliar normalmente aberto do contactor a ligar,
assegura a alimentação do contactor.
SF4, SF5, SF6 são botões de pressão normalmente fechados e destinam-se a interromper a marcha do motor.
De salientar que S1 é o térmico do motor e está associado em série com os botões de paragem...
Cps
A. Castro
e os condutores que ligam ao motor estão onde ?
no esquema onde ligaria os condutores do motor ?
já tenho o esquema multifilar praticamente feito queria colocar a imagem do motor ...
uma ultima duvida , cada SF é um botão ? ou estamos a falar de um caixa SF com 3 botões tipo isto :
http://www.salfatis.com.br/produtos.codigo_547.html

obrigado
quero aprender
Velha Guarda
Velha Guarda
Mensagens: 1629
Registado: 07 abr 2008, 13:20
Localização: alverca
Enviou: 2 vezes
Agradecimento recebido: 6 vezes

Re: Ligar e desligar motor em 2 locais diferentes

Mensagem por quero aprender »

jaimereis Escreveu:é multifilar, aliás, esquemas de comando só se representam dessa maneira...
será que o multifilar em anexo é igual a este multifilar ?

Imagem

e este multifilar , está muito há quem dos esquemas multifilares hoje usados ...
tenho que ir ao meu baú da desempredizagem do cenfic e colocar aqui esquemas multifilares ....
também é a minha obrigação como contributo ...
damon
Velha Guarda
Velha Guarda
Mensagens: 356
Registado: 23 abr 2014, 17:48
Localização: setubal
Enviou: 6 vezes
Agradecimento recebido: 17 vezes

Re: Ligar e desligar motor em 2 locais diferentes

Mensagem por damon »

quero aprender,
esta certo e isso o esquema completa :D
quero aprender
Velha Guarda
Velha Guarda
Mensagens: 1629
Registado: 07 abr 2008, 13:20
Localização: alverca
Enviou: 2 vezes
Agradecimento recebido: 6 vezes

Re: Ligar e desligar motor em 2 locais diferentes

Mensagem por quero aprender »

damon Escreveu:quero aprender,
esta certo e isso o esquema completa :D
assim que tenha resposta as minhas duvidas dos botões e motor eu faço o esquema e coloco-o aqui ...
jaimereis
Quadro de Honra
Quadro de Honra
Mensagens: 2011
Registado: 30 abr 2011, 11:56
Localização: Almada/Charneca da Caparica
Enviou: 2 vezes
Agradecimento recebido: 13 vezes

Re: Ligar e desligar motor em 2 locais diferentes

Mensagem por jaimereis »

quero aprender Escreveu:
jaimereis Escreveu:é multifilar, aliás, esquemas de comando só se representam dessa maneira...
será que o multifilar em anexo é igual a este multifilar ?

Imagem

e este multifilar , está muito há quem dos esquemas multifilares hoje usados ...
tenho que ir ao meu baú da desempredizagem do cenfic e colocar aqui esquemas multifilares ....
também é a minha obrigação como contributo ...

caro amigo quero aprender, o esquema que apresenta é também multifilar, apenas difere do esquema do nelmindo na maneira de representação grafica....

o do nelmindo é mais usado em automação, pois é o chamado ladder, ou em escada, pois permite a continuidade no desenvolvimento de um projecto, mas é um esquema multifilar de comando, só comando...o seu tem o de potencia também representado...mas se quiser desenvolver, chegará a um ponto que ficará um belo aranhiço....
Jaime Reis
quero aprender
Velha Guarda
Velha Guarda
Mensagens: 1629
Registado: 07 abr 2008, 13:20
Localização: alverca
Enviou: 2 vezes
Agradecimento recebido: 6 vezes

Re: Ligar e desligar motor em 2 locais diferentes

Mensagem por quero aprender »

quero aprender Escreveu:
damon Escreveu:quero aprender,
esta certo e isso o esquema completa :D
assim que tenha resposta as minhas duvidas dos botões e motor eu faço o esquema e coloco-o aqui ...

e os condutores que ligam ao motor estão onde ?
no esquema onde ligaria os condutores do motor ?
já tenho o esquema multifilar praticamente feito queria colocar a imagem do motor ...
uma ultima duvida , cada SF é um botão ? ou estamos a falar de um caixa SF com 3 botões tipo isto :
http://www.salfatis.com.br/produtos.codigo_547.html

obrigado
LOTAN
Velha Guarda
Velha Guarda
Mensagens: 210
Registado: 27 nov 2010, 23:45
Localização: Setúbal
Agradecimento recebido: 1 vez

Re: Ligar e desligar motor em 2 locais diferentes

Mensagem por LOTAN »

quero aprender Escreveu:
e os condutores que ligam ao motor estão onde ?
no esquema onde ligaria os condutores do motor ?
O esquema do caro nelmindo é apenas do circuito de comando, por isso não tem a cablagem do motor.

Os circuitos de potência e de comando são desenhados em separado, nem precisam de estar na(s) mesma(s) folha(s), e, conforme a complexidade nem precisa do de potência para analisar/executar o de comando, que é o caso.

O esquema que colocou é um de potência com um esquema didático de comando, usado para aprendizagem, mas não é um esquema normalizado para instalação, que são os que vai "apanhar" ao longo da sua vida profissional.

Eu aconselhava a treinar a interpretação dos esquemas normalizados. Existe muita informação na net, muitos sites brasileiros. É só fazer a devida adaptação da terminologia.

Eu também devia fazer o mesmo que já estou destreinado.
quero aprender
Velha Guarda
Velha Guarda
Mensagens: 1629
Registado: 07 abr 2008, 13:20
Localização: alverca
Enviou: 2 vezes
Agradecimento recebido: 6 vezes

Re: Ligar e desligar motor em 2 locais diferentes

Mensagem por quero aprender »

LOTAN Escreveu:
quero aprender Escreveu:
e os condutores que ligam ao motor estão onde ?
no esquema onde ligaria os condutores do motor ?
O esquema do caro nelmindo é apenas do circuito de comando, por isso não tem a cablagem do motor. sim isso eu sei é fácil de ver , já tudo mundo viu que está incompleto

Os circuitos de potência e de comando são desenhados em separado, nem precisam de estar na(s) mesma(s) folha(s), e, conforme a complexidade nem precisa do de potência para analisar/executar o de comando, que é o caso. sim é verdade , e também ninguém disse o contrario

O esquema que colocou é um de potência com um esquema didático de comando, usado para aprendizagem, mas não é um esquema normalizado para instalação, que são os que vai "apanhar" ao longo da sua vida profissional. o esquema que coloquei era para destacar a parte de comando , veja " POR FAVOR " as ligações dos botões por exemplo , as ligações do A1 e A2 , são claramente percebíveis ... e esta forma é a forma correcta de multifilar , e como já disse há multifilares ainda bem mais explícitos

Eu aconselhava a treinar a interpretação dos esquemas normalizados. Existe muita informação na net, muitos sites brasileiros. É só fazer a devida adaptação da terminologia.

Eu também devia fazer o mesmo que já estou destreinado.
LOTAN
Velha Guarda
Velha Guarda
Mensagens: 210
Registado: 27 nov 2010, 23:45
Localização: Setúbal
Agradecimento recebido: 1 vez

Re: Ligar e desligar motor em 2 locais diferentes

Mensagem por LOTAN »

quero aprender Escreveu: o esquema que coloquei era para destacar a parte de comando , veja " POR FAVOR " as ligações dos botões por exemplo , as ligações do A1 e A2 , são claramente percebíveis ... e esta forma é a forma correcta de multifilar , e como já disse há multifilares ainda bem mais explícitos
Parece-me que continua a fazer confusão em relação ao ser unifilar e multifilar.

Todos os esquemas de comando colocados neste tópico são multifilares.

O do nelmindo está feito com a simbologia normalizada internacionalmente e é a que é usada profissionalmente.

Não está completo, mas não é por falta do esquema de potência, já que são esquemas separados, e o nelmindo escreveu que apenas corrigiu o de comando, e sim num pormenor ou outro, que para o caso é irrelevante.

De qualquer forma, o esquema do jcarreira tem o esquema de potência.

O seu é um esquema funcional de comando e potência usado para facilidade de interpretação.

É verdade que é mais explicíto, mas não é isso que o torna mais correcto.

Ambos têm a sua aplicação, o funcional para interpretação e formação e o normalizado para, bem, para tudo.
Darem formação apoiada sobretudo em esquemas funcionais é mau.

O que eu quis com o meu post anterior foi alertar para se treinar a interpretar um esquema normalizado porque são os que vai encontrar quase sempre, e não os esquemas funcionais (esquemas didácticos).
ohmico
Técnico Dedicado
Técnico Dedicado
Mensagens: 1922
Registado: 22 fev 2008, 14:44
Enviou: 18 vezes
Agradecimento recebido: 82 vezes

Re: Ligar e desligar motor em 2 locais diferentes

Mensagem por ohmico »

LOTAN Escreveu:
quero aprender Escreveu: o esquema que coloquei era para destacar a parte de comando , veja " POR FAVOR " as ligações dos botões por exemplo , as ligações do A1 e A2 , são claramente percebíveis ... e esta forma é a forma correcta de multifilar , e como já disse há multifilares ainda bem mais explícitos
Parece-me que continua a fazer confusão em relação ao ser unifilar e multifilar.

Todos os esquemas de comando colocados neste tópico são multifilares.

O do nelmindo está feito com a simbologia normalizada internacionalmente e é a que é usada profissionalmente.

Não está completo, mas não é por falta do esquema de potência, já que são esquemas separados, e o nelmindo escreveu que apenas corrigiu o de comando, e sim num pormenor ou outro, que para o caso é irrelevante.

De qualquer forma, o esquema do jcarreira tem o esquema de potência.

O seu é um esquema funcional de comando e potência usado para facilidade de interpretação.

É verdade que é mais explicíto, mas não é isso que o torna mais correcto.

Ambos têm a sua aplicação, o funcional para interpretação e formação e o normalizado para, bem, para tudo.
Darem formação apoiada sobretudo em esquemas funcionais é mau.

O que eu quis com o meu post anterior foi alertar para se treinar a interpretar um esquema normalizado porque são os que vai encontrar quase sempre, e não os esquemas funcionais (esquemas didácticos).

Boas,

Completamente de acordo, ninguém na pratica consegue deslindar uma avaria rapidamente com recurso ao tal esquema funcional.

Isso eram tipos de representação esquemática que se encontravam com alguma frequência, há muitos anos, em máquinas vindas por exêmplo de Itália e que davam esquemas que eram autenticos "lençóis de cama".

Ohmico
quero aprender
Velha Guarda
Velha Guarda
Mensagens: 1629
Registado: 07 abr 2008, 13:20
Localização: alverca
Enviou: 2 vezes
Agradecimento recebido: 6 vezes

Re: Ligar e desligar motor em 2 locais diferentes

Mensagem por quero aprender »

LOTAN Escreveu:
quero aprender Escreveu: o esquema que coloquei era para destacar a parte de comando , veja " POR FAVOR " as ligações dos botões por exemplo , as ligações do A1 e A2 , são claramente percebíveis ... e esta forma é a forma correcta de multifilar , e como já disse há multifilares ainda bem mais explícitos
Parece-me que continua a fazer confusão em relação ao ser unifilar e multifilar. se há uma coisa que eu sei " BEM " é o que é um esquema unifilar e o que é um multifilar ...

Todos os esquemas de comando colocados neste tópico são multifilares. basta ver no esquema que eu coloquei como está a parte de comando para ver como é o multifilar

O do nelmindo está feito com a simbologia normalizada internacionalmente e é a que é usada profissionalmente. depende da entidade que fornece o esquema

Não está completo, mas não é por falta do esquema de potência, já que são esquemas separados, e o nelmindo escreveu que apenas corrigiu o de comando, e sim num pormenor ou outro, que para o caso é irrelevante.

De qualquer forma, o esquema do jcarreira tem o esquema de potência.

O seu é um esquema funcional de comando e potência usado para facilidade de interpretação. sim e É o que É usado na formação profissional como multifilar

É verdade que é mais explicíto, mas não é isso que o torna mais correcto. falou muitíssimo bem " mais explicito " como dizia um certo prof e muito bem com um esquema multifilar qualquer um liga qualquer equipamento ... e isso é uma realidade , a maior parte das pessoas querem esse tipo de esquema ...

Ambos têm a sua aplicação, o funcional para interpretação e formação e o normalizado para, bem, para tudo.
Darem formação apoiada sobretudo em esquemas funcionais é mau. acha ? é um esquema , não é ? porque não acabar com o unifilar e ficar só o multifilar ? para si é o unifilar para mim é multifilar que devia vigorar

O que eu quis com o meu post anterior foi alertar para se treinar a interpretar um esquema normalizado porque são os que vai encontrar quase sempre, e não os esquemas funcionais (esquemas didácticos).
mas o que diz e agradeço muito mesmo o seu conselho , já o fiz como é obvio , mas não há formação nesse sentido ... concordo consigo que deveria haver nos cursos um modulo para aprender a ler esquema mesmo que esses fossem multifilares ...


deixe que lhe diga uma coisa , esse esquema de comando que diz ser multifilar que há muito boa gente que não consegue ligar nada com ele ...
mas com um multifilar que eu aprendi acredite que ligam ...
eu tenho apanhado muitos esquemas unifilares e passo mal ... mas claro eu tenho todo o prazer em aprender a pescar ...
para mim esta situação do multifilar e não multifilar acaba aqui ...
o que eu tinha muito prazer e gosto era a vossa ajuda a esta resposta :

e os condutores que ligam ao motor estão onde ?
no esquema onde ligaria os condutores do motor ?
já tenho o esquema multifilar praticamente feito queria colocar a imagem do motor ...
uma ultima duvida , cada SF é um botão ? ou estamos a falar de um caixa SF com 3 botões tipo isto :
http://www.salfatis.com.br/produtos.codigo_547.html


e para quê ?
para fazer o esquema porque estou certo que muito estão há espera do mesmo :roll: :roll: :roll: :roll: :roll: :roll: :roll:
CF,Lda
Técnico Dedicado
Técnico Dedicado
Mensagens: 757
Registado: 04 abr 2010, 01:41
Localização: Gondomar
Enviou: 10 vezes
Agradecimento recebido: 34 vezes

Re: Ligar e desligar motor em 2 locais diferentes

Mensagem por CF,Lda »

vivam.
Quando frequentava a escola na longínqua década de 70, era assim o esquema uni filar;
ESQ. UNIFILAR.bmp
ESQ. UNIFILAR.bmp (729.05 KiB) Visto 2038 vezes
Lamento dizer isto nas se olham para o esquema apresentado pelo Nelmindo e não conseguem
ligar as peças, não sabem ler um esquema de electricidade.
Efectivamente, haverá muita gente à espera do dito esquema ... e de outros esquemas...
Até mesmo para fazerem dinheiro com isso. Mas não lhes adianta nada, porque não sabendo ler, não sabem executar.
Cps
A. Castro
ruka
Curioso
Curioso
Mensagens: 72
Registado: 18 ago 2012, 23:37
Localização: Porto

Re: Ligar e desligar motor em 2 locais diferentes

Mensagem por ruka »

Caro Quero Aprender o esquema de que fala já não se usa há mais de 30 anos, pode parecer fácil a sua leitura para iniciantes em automatismos mas se o esquema tiver mais componentes vai ficar tipo teia de aranha como já foi dito e dificil de entender.
Se "quer aprender " tente olhar as indicações que lhe tém dado ,que na minha opinião são atuais e correspondem ao estado actual da electrotécnica.
A sua tecnica de obter informações já não se usa!
De qualquer forma deixo-lhe aqui um exemplo de um esquema actual.
Pode adicionar mais botoneiras de arranque em paralelo e botoneiras de paragem em série com as já existentes.
Anexos
Automatismo.jpg
Automatismo.jpg (16.38 KiB) Visto 2036 vezes
Última edição por ruka em 16 jul 2014, 22:09, editado 2 vezes no total.
Cps.
jaimereis
Quadro de Honra
Quadro de Honra
Mensagens: 2011
Registado: 30 abr 2011, 11:56
Localização: Almada/Charneca da Caparica
Enviou: 2 vezes
Agradecimento recebido: 13 vezes

Re: Ligar e desligar motor em 2 locais diferentes

Mensagem por jaimereis »

quero aprender Escreveu:
LOTAN Escreveu:
quero aprender Escreveu: o esquema que coloquei era para destacar a parte de comando , veja " POR FAVOR " as ligações dos botões por exemplo , as ligações do A1 e A2 , são claramente percebíveis ... e esta forma é a forma correcta de multifilar , e como já disse há multifilares ainda bem mais explícitos
Parece-me que continua a fazer confusão em relação ao ser unifilar e multifilar. se há uma coisa que eu sei " BEM " é o que é um esquema unifilar e o que é um multifilar ...

Todos os esquemas de comando colocados neste tópico são multifilares. basta ver no esquema que eu coloquei como está a parte de comando para ver como é o multifilar

O do nelmindo está feito com a simbologia normalizada internacionalmente e é a que é usada profissionalmente. depende da entidade que fornece o esquema

Não está completo, mas não é por falta do esquema de potência, já que são esquemas separados, e o nelmindo escreveu que apenas corrigiu o de comando, e sim num pormenor ou outro, que para o caso é irrelevante.

De qualquer forma, o esquema do jcarreira tem o esquema de potência.

O seu é um esquema funcional de comando e potência usado para facilidade de interpretação. sim e É o que É usado na formação profissional como multifilar

É verdade que é mais explicíto, mas não é isso que o torna mais correcto. falou muitíssimo bem " mais explicito " como dizia um certo prof e muito bem com um esquema multifilar qualquer um liga qualquer equipamento ... e isso é uma realidade , a maior parte das pessoas querem esse tipo de esquema ...

Ambos têm a sua aplicação, o funcional para interpretação e formação e o normalizado para, bem, para tudo.
Darem formação apoiada sobretudo em esquemas funcionais é mau. acha ? é um esquema , não é ? porque não acabar com o unifilar e ficar só o multifilar ? para si é o unifilar para mim é multifilar que devia vigorar

O que eu quis com o meu post anterior foi alertar para se treinar a interpretar um esquema normalizado porque são os que vai encontrar quase sempre, e não os esquemas funcionais (esquemas didácticos).
mas o que diz e agradeço muito mesmo o seu conselho , já o fiz como é obvio , mas não há formação nesse sentido ... concordo consigo que deveria haver nos cursos um modulo para aprender a ler esquema mesmo que esses fossem multifilares ...


deixe que lhe diga uma coisa , esse esquema de comando que diz ser multifilar que há muito boa gente que não consegue ligar nada com ele ...
mas com um multifilar que eu aprendi acredite que ligam ...
eu tenho apanhado muitos esquemas unifilares e passo mal ... mas claro eu tenho todo o prazer em aprender a pescar ...
para mim esta situação do multifilar e não multifilar acaba aqui ...
o que eu tinha muito prazer e gosto era a vossa ajuda a esta resposta :

e os condutores que ligam ao motor estão onde ?
no esquema onde ligaria os condutores do motor ?
já tenho o esquema multifilar praticamente feito queria colocar a imagem do motor ...
uma ultima duvida , cada SF é um botão ? ou estamos a falar de um caixa SF com 3 botões tipo isto :
http://www.salfatis.com.br/produtos.codigo_547.html


e para quê ?
para fazer o esquema porque estou certo que muito estão há espera do mesmo :roll: :roll: :roll: :roll: :roll: :roll: :roll:
quero aprender...a ver se consigo...

SF1, SF2, SF3 são respectivamente, contacto aberto da botoneira 1 para ligar, contacto aberto da botoneira 2 para ligar, contacto aberto da botoneira 3 para ligar

SF4, SF5 são respectivamente, contacto fechado da botoneira 4 para desligar, contacto fechado da botoneira 5 para desligar

contacto(simbolo de contacto)QA1, contacto auxiliar normalmente aberto do contactor, faz a auto-alimentação ao contactor quando se pressiona uma das botoneiras para ligar

S1, é o contacto normalmente fechado do térmico associado ao motor, pode ser o térmico interno do motor ou um bloco térmico acoplado ao contactor

símbolo de bobine QA1, é o contactor....

espero ter ajudado...
Jaime Reis
Avatar do Utilizador
Mário
Team Apoio
Team Apoio
Mensagens: 8150
Registado: 09 nov 2007, 22:11
Localização: Lisboa
Enviou: 3 vezes
Agradecimento recebido: 221 vezes

Re: Ligar e desligar motor em 2 locais diferentes

Mensagem por Mário »

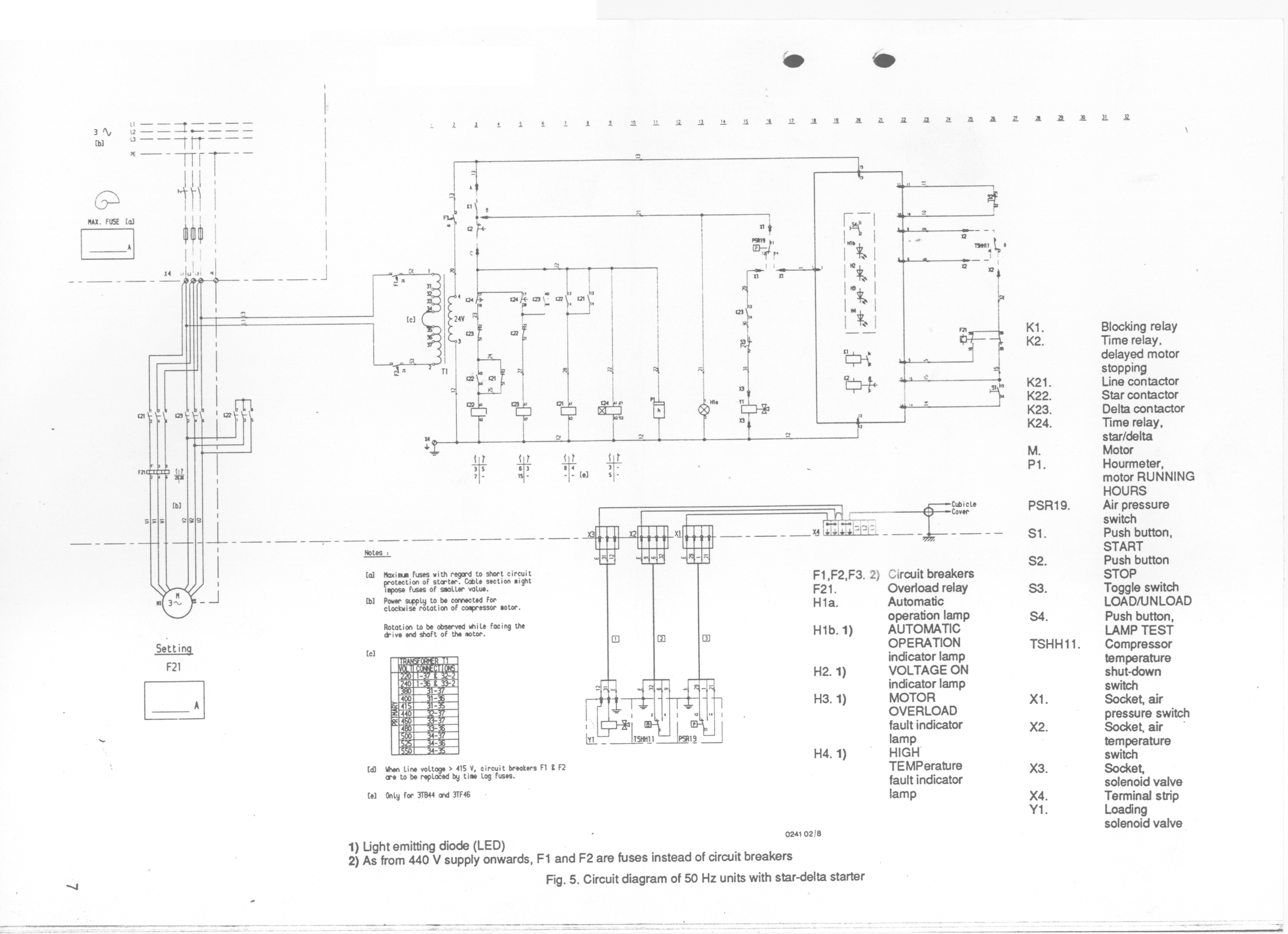
Boas
É um pouco off-topic, mas tem haver com esquemas.

Os esquemas são de dois compressores de marcas diferentes, mas do mesmo grupo. Vê como é actualmente um dos tipos de representação, há casos em que se tem 10 ou 20 paginas com desenho eléctrico da mesma máquina, temos que reconhecer os simbolos Europeus e de outros Países também.

Cump.
Mário
Anexos
Schéma V 40 à 75G7 EN.pdf
(724.04 KiB) Transferido 163 vezes
GA-22-A.bmp
(3.76 MiB) Não foi transferido ainda
" Nenhum trabalho é tão importante quanto colocar em risco a minha segurança ou daqueles ao meu redor."
Responder

Voltar para “Discussão Eletricidade”